Продається квартира Пішонівська вул., 26, Одеса, Одеська, Приморський, Молдаванка (№ 213-284-081)
Ціна: 35 500 $

Пішонівська вул., 26, Одеса, Одеська, Приморський, Молдаванка
Характеристики
| Ціна: | 35 500 $ |
|---|---|
| № об'єкта: | 213-284-081 |
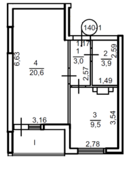
| Кімнат: | 1 розд |
| Поверх: | 6 / 17 ліфт |
| Площа: | 41.47 / 20,6 / 9,5 м2 |
| Санвузол: | 1 сумісний |
| Балкон: | лоджія |
| Газ / Електро: | Електроплита |
| Стан квартири: | Від забудовника |
| Проект будинку: | Спецпроект |
| Матеріал стін: | Газобетон |
| Опалення: | Автономне |
| Додатково: | новобудова |
Опис
Акварель 3 Переуступка.
Сучасний комфортабельний ЖК Акварель 3 розташований на вул. Пішонівська, у легендарній старій Одесі, всього за 10 хвилин ходьби від історичного центру. Закрита цілодобово територія з продуманим плануванням і дитячими майданчиками з атравматичним покриттям створюють всі умови для комфортного життя.
Двір закритого типу / консьєрж / охорона. Комплекс має власний трирівневий паркінг. Система кодових замків та професійний консьєрж унеможливлює проникнення в будинок сторонніх людей. Світлий просторий хол з лаконічним інтер'єром..
Переваги
близькість до центру міста;
розвинена інфраструктура;
трирівневий паркінг;
якісна звукоізоляція;
розвинена інфраструктура (до 500 метрів): Відділення банку, банкомат, Автовокзал, Аптека, Ринок, Відділення пошти, Ресторан, кафе, Школа, Супермаркет, ТРЦ

















