Квартира з ремонтом в цегляному газовому будинку! (№ 213-271-175)
Ціна: 51 000 $

Академіка Сахарова вул., 16а, Одеса, Одеська, Пересипський (Суворовський), Котовського
Характеристики
| Ціна: | 51 000 $ |
|---|---|
| № об'єкта: | 213-271-175 |
| Кімнат: | 1 розд |
| Поверх: | 10 / 11 ліфт |
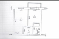
| Площа: | 51 / 23 / 13 м2 |
| Санвузол: | 1 сумісний |
| Балкон: | балкон |
| Газ / Електро: | Газовий дім |
| Стан квартири: | Капітальний ремонт |
| Проект будинку: | Спецпроект |
| Матеріал стін: | Цегла |
| Опалення: | ТЕЦ |
| Додатково: | новобудова |
Опис
Продається квартира в новому цегляному будинку біля моря повністю готова до заселення.
Поверх: 10 з 11 (є технічний поверх).Загальна площа: 50, 7 м².Стан: новий ремонт + меблі та техніка
Переваги квартири:
Зручне планування: простора кухня 12, 9 м² з виходом на балкон та окрема кімната з альковом.У кімнаті передбачено окреме робоче місце комфорт для тих, хто працює з дому. Сучасний ремонт 2022 року, в квартирі ніхто не жив. Повністю укомплектована новою технікою: кондиціонер, бойлер, пральна машина, холодильник, духовка та комбінована плита (газ + елєктро ).Нержавіюча сушарка для білизни за межами балкона. Броньовані вхідні двері для безпеки.З вікон відкривається прекрасний вид на море.
Переваги будинку та комплексу:
Будинок 2021 року, цегляний, з потолками 2, 7 м.
Тамбур на 4 квартири - комфорт і приватність .
Два ліфти: пасажирський і вантажний.Підземний паркінг та комори.Горизонтальна розводка опалення -можливість встановити індивідуальний лічильник тепла.
Район з розвиненою інфраструктурою: дитячий садок, школа, магазини.Кінцева зупинка громадського транспорту поруч. До моря всього 15 хвилин пішки.











