Головна >> Продаж квартир >> Об'єкт №213270778

3-кімнатна квартира від будівельників, ЖК Вентум  (№ 213-270-778)

Ціна: 55 000 $

3-кімнатна квартира від будівельників, ЖК Вентум фото 1

Академіка Сахарова, 11, Крижанівка, Лиманський, Одеська

Характеристики

Ціна: 55 000 $
№ об'єкта: 213-270-778
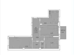
Кімнат: 3 розд
Поверх: 2 / 5 ліфт
Площа: 72 / - / 25 м2
Санвузол: 1 роздільний
Балкон: лоджія
Стан квартири: Від забудовника
Проект будинку: Спецпроект
Матеріал стін: Газобетон
Опалення: Автономне
Додатково: новобудова

Опис

3-кімнатна квартира від будівельників, ЖК Вентум

Об'єкт на карті