Продається квартира Аркадіївський пров., 4, Одеса, Одеська, Приморський (№ 213-227-511)
Ціна: 58 000 $

Аркадіївський пров., 4, Одеса, Одеська, Приморський
Характеристики
| Ціна: | 58 000 $ |
|---|---|
| № об'єкта: | 213-227-511 |
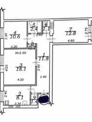
| Кімнат: | 3 розд |
| Поверх: | 4 / 9 ліфт |
| Площа: | 69.30 / 41.50 / 8.10 м2 |
| Санвузол: | 1 роздільний |
| Балкон: | балкон |
| Газ / Електро: | Газовий дім |
| Стан квартири: | Незавершений ремонт |
| Проект будинку: | Чешка |
| Опалення: | ТЕЦ |
Опис
Одесса, 6-я станция Фонтанской дороги
Зроблено перепланування у велику вітальню з виходом на балкон і 2 окремі кімнати, санвузол суміщений, душ трап, фанерований.
Нові вікна. Розлучені всі комунікації:
Освітлення Вода Газ
Опалення , нові радіатори,
приховане проведення труб.
Усі лічильники.
Квартира порожня (без меблів)
Оздоблення стелі: натяжна стеля • фарбування
Підлога (покриття): дощата підлога
Внутрішнє оздоблення: фарбування • декоративна штукатурка • керамічна плитка • кахель
Зовнішнє оздоблення: обкладено цеглою











