2 кімнатна квартира в зданому ЖК 'Бісквітний' в центрі міста, 10/11! (№ 213-227-087)
Ціна: 65 000 $

Середньофонтанський пров., 3а, Одеса, Одеська, Приморський, Центр
Характеристики
| Ціна: | 65 000 $ |
|---|---|
| № об'єкта: | 213-227-087 |
| Кімнат: | 2 розд |
| Поверх: | 10 / 11 ліфт |
| Площа: | 60 / 29.30 / 15 м2 |
| Санвузол: | сумісний |
| Балкон: | балкон+лоджія |
| Стан квартири: | Від забудовника |
| Проект будинку: | Спецпроект |
| Додатково: | новобудова |
Опис
Одеса, Центр, Середньофонтанський пров., Обладміністрація
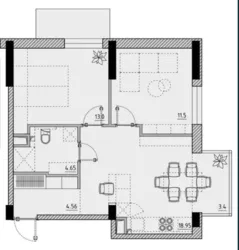
Пропонується до продажу простора 2-во кімнатна квартира в новому зданому ЖК 'Бісквітний' в центрі міста, 10/11!
• Комплекс розташований у Середньофонтанському провулку біля парку Обладміністрації. Повна автономія. Закрита прибудинкова територія з відеоспостереженням, дитячими майданчиками та паркінгом.
• Загальна площа квартири 60 кв.м, велика кухня-студія – 15 кв.м, 2 роздільні кімнати – 17 та 12,3 кв.м, гардеробна, 2 балкони з панорамним склінням. Квартира двостороння.
• Усі комунікації вже заведені у квартиру, розведені вода та система опалення. Встановлено 2-х контурний котел Арістон та радіатори. Кошики під кондиціонери. Металопластикове скління, броньовані вхідні двері.
• Свідоцтво про право власності.
• Зручний престижний район. У пішій доступності супермаркети, ТРЦ Fontan Sky Center, кінотеатр, дитячі садки та школи.












