Продам 3-к. квартиру ЖК Посейдон  (№ 213-226-796)

Ціна: 130 000 $

Продам 3-к. квартиру ЖК Посейдон фото 1

Дача Ковалевского, 5, Одеса, Одеська, Київський

Характеристики

Ціна: 130 000 $
№ об'єкта: 213-226-796
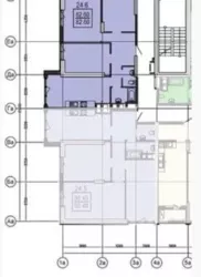
Кімнат: 3
Поверх: 24 / 26
Площа: 90 / 75 / - м2
Стан квартири: Від забудовника
Проект будинку: Новобудова
Додатково: новобудова

Опис

Продам квартиру ЖК Посейдон 90 кв. На 24 поверсі. За 5 хвилин від пляжу Золотий берег 16 фонтану. З усіх вікон відкривається краєвид на море. Світло не вимикають, також є генератор на ліфт, опалення, воду.
У подарунок 2 комори на поверсі + дизайн проект + встановлений тепло лічильник.
Оплата лише готівкою.

Об'єкт на карті