2 кімн квартира Балтська дорога Гарний житловий стан Гараж (№ 213-225-702)
Ціна: 28 000 $

Балтська дорога вул., 45, Одеса, Одеська, Пересипський (Суворовський), Пересип
Характеристики
| Ціна: | 28 000 $ |
|---|---|
| № об'єкта: | 213-225-702 |
| Кімнат: | 2 |
| Поверх: | 5 / 5 |
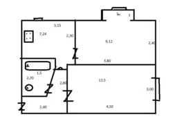
| Площа: | 44 / 24 / 8 м2 |
| Санвузол: | 1 роздільний |
| Балкон: | балкон |
| Газ / Електро: | Газовий дім |
| Стан квартири: | Житлове |
| Проект будинку: | Хрущовка |
| Матеріал стін: | Панель |
| Опалення: | ТЕЦ |
Опис
Продається 2-кімнатна квартира площею 44 м2 на 4 поверсі 5-поверхового будинку. якій знаходиться на Балтськой дорозі 2 світлих кімнати роздільні. Дах будинку- новий. Стіни утеплені. Вхідні двері металеві, Вікна металопластикові. Є електролічильник, водомір, газовий лічильник, електрокотел. Є водяне опалення, бойлер - гаряча вода і у ванній та на кухні. У санвузлі всі труби – нові, також у квартирі та у підвалі. На кухні є витяжка. На подвір'ї є гараж (4х6) 24 кв.м та дитячий майданчик. Поруч школа №41 та новий стадіон. Двір закритий. Нова електрика та нова каналізація у підвалі. Тихий, спокійний район. Ми на Вас чекаємо - приходьте. Торг доречний. Купуйте квартиру у особисту властність. Код 213-225-702












